• Buy
  • Rent
  • Commercial

Buy

Rent

Commerical

Land & New Homes

Auction

Mortgages

Home / Search Results / Carmelite Crescent, St. Helens

Carmelite Crescent, St. Helens

£250,000

2 Bedrooms, Semi-Detached Bungalow

Details
Floor Plan
Video Tour
Location

Key Features

  • Well-presented semi-detached bungalow offering a practical and well-balanced layout
  • Purpose-built detached garage with a large driveway, providing ample off-road parking
  • Generous, low-maintenance gardens to both front and rear – ideal for easy living
  • Bright and spacious sitting room with plenty of natural light
  • Modern kitchen with good storage and workspace, positioned conveniently off the hallway
  • Two well-proportioned bedrooms, including a generous master bedroom
  • Additional conservatory providing extra living space with views over the garden
  • Double glazed and gas central heated throughout
  • Offered for sale in good condition and with no onward chain
  • Walking distance to local shops, café, post box and public transport routes – an ideal, low-maintenance bungalow that must be viewed to be fully appreciated

Details

This well-presented semi-detached bungalow offers a practical and well-balanced layout, making it an appealing choice for those seeking comfort and convenience in a desirable location. The property features a purpose-built detached garage alongside a large driveway, providing ample off-road parking for multiple vehicles. Inside, the bright and spacious sitting room is flooded with natural light, creating a welcoming atmosphere that is perfect for relaxing or entertaining. The modern kitchen, located conveniently off the hallway, offers excellent storage and generous workspace, catering to both every-day living and culinary pursuits. Two well-proportioned bedrooms, including a generous master bedroom, provide comfortable accommodation, while the additional conservatory offers valuable extra living space with pleasant views over the garden (ideal for use as a dining area, reading room or home office). The property is double glazed and benefits from gas central heating throughout, ensuring comfort and energy efficiency all year round. Offered for sale in good condition and with no onward chain, this bungalow is ready for immediate occupation. Residents will appreciate the easy access to local shops, a café, post box and public transport routes, all within walking distance, making this an ideal low-maintenance home for those looking to downsize or enjoy single-level living. This delightful bungalow must be viewed to be fully appreciated, offering a rare opportunity to acquire a well-maintained property in a sought-after area.

Arrange a Viewing

Please contact our Branch Manager in St Helens to arrange a viewing.

T: 01744 754120

E: sthelens@ashtons.net


Alternatively use the form below and we'll get back to you.

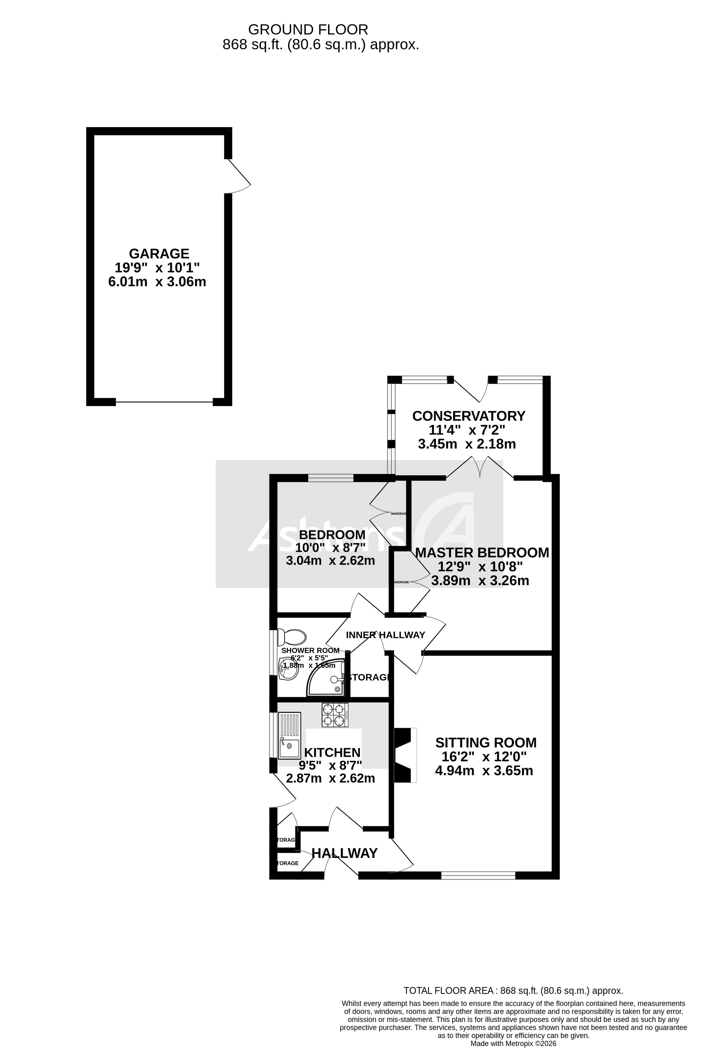
Floor Plan(s)

Carmelite Crescent, St. Helens Floor Plan

Video Tour

Map View

Street View

Free Valuation

Our team of specialists will advise you on the real value of your property. Click here.

Hear about

new homes first.

We match buyers with their perfect home - typically 24 hours before they appear on the property portals. During these strange times, we feel it’s best to be able to view a home online before you view in person. Which is why hot buyers are notified first. If your not hot, don’t worry we can help you with that.

Who’s Hot? And Who’s Not?

Put simply, buyers who are ready to buy. So, if you have sold your home, cash buyer with nothing to sell or first time buyer with your finances in place your hot to trot!

Why Register With Us?

We sell 1 in every 4 homes across our effective area, so there is a good chance we will have your dream home coming on the market soon. Also, we typically alert our database of new homes up to 24 hours before they go online.

Sell Your Home or Get a Mortgage Straight Away!

It’s super important in a competitive market to get yourself in the best position possible. Whether that’s selling your current home or getting your finances in place. Luckily, we can help you with both.