Free Valuation
Our team of specialists will advise you on the real value of your property. Click here.
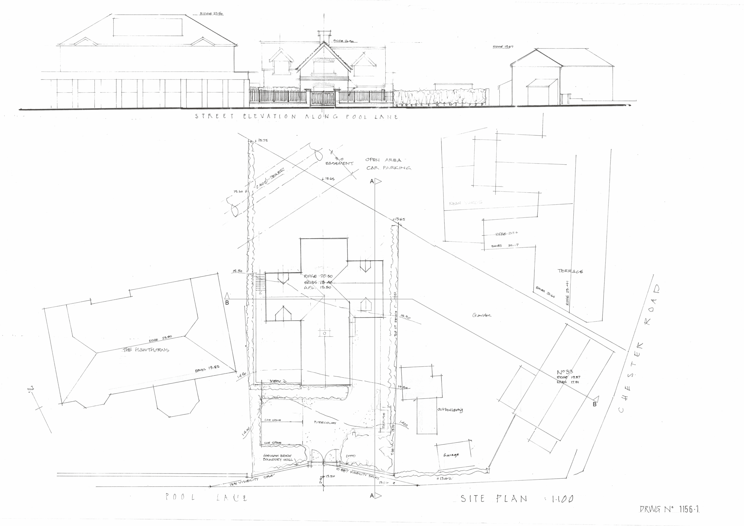
Planning Permission Agreed for a 4 Bedroom detached Home,
£250,000
A rare opportunity to acquire land with Full planning permission within walking distance of Stockton Heath village, Planning permission for an executive detached house offered for sale as a Freehold title with the benefit of full Planning Permission ref; 2020/36851.
Location:
Interested?
Our team of specialists will advise you on the real value of your property. Click here.