• Buy
  • Rent
  • Commercial

Buy

Rent

Commerical

Land & New Homes

Auction

Mortgages

Home / Search Results / Siren Close, Warrington

Siren Close, Warrington

£300,000

3 Bedrooms, Semi-Detached House

Details
Floor Plan
Location

Key Features

  • A selection of incredible new homes in this sought after exclusive development of just ten homes
  • Situated within a privately owned cul de sac there are 6 remaining homes with either 3 or 4 bedrooms
  • Quality flooring fitted throughout, featuring a stylish mix of herringbone laminate, plush carpets, and elegant tiling.
  • Contemporary kitchen, fully equipped with integrated appliances — including a dishwasher, washer-dryer, fridge-freezer, and built-in eye-level oven.
  • Sophisticated bathrooms, beautifully designed with full-height tiling, vanity units, and illuminated mirrors.
  • Smart home technology, including a Ring video doorbell and Hive smart heating controls. Electric vehicle charging point, perfect for modern, eco-conscious living.
  • Landscaped rear garden with turf and paved patio area, ideal for outdoor enjoyment.
  • Comprehensive new-build warranty, giving you reassurance and peace of mind.

Details

This newly constructed home forms part of Siren Close, an exclusive development by Virtu Homes comprising just ten high-quality new properties. With six homes still available, the development offers a range of beautifully designed three- and four-bedroom homes, each crafted with modern living in mind. Situated in a private cul-de-sac, Siren Close provides a peaceful setting surrounded by greenery.

This newly constructed home forms part of Siren Close, an exclusive development by Virtu Homes comprising just ten high-quality new properties. With six homes still available, the development offers a range of beautifully designed three- and four-bedroom homes, each crafted with modern living in mind. Situated in a private cul-de-sac, Siren Close provides a peaceful setting surrounded by greenery.

This impressive three-bedroom, two-bathroom semi-detached house seamlessly blends contemporary style with family-friendly functionality. A welcoming entrance hallway with elegant herringbone flooring leads into a bright open-plan living space, perfect for entertaining or relaxing. French doors open onto a spacious private garden with a lawn and paved patio, offering an ideal space for outdoor dining, play, or summer gatherings.

At the heart of the home sits a sleek, modern kitchen complete with integrated appliances, high-gloss cabinetry, and ample worktop space. Large windows fill the interior with natural light, enhancing the neutral décor and premium finishes throughout.

The principal bedroom boasts a luxurious en-suite shower room, while both bathrooms feature contemporary fittings, walk-in showers, and heated towel rails for added comfort.

Additional benefits include plush carpeting in all bedrooms, private driveway parking, and a striking modern exterior that provides excellent kerb appeal.

This property offers an exceptional opportunity for families or professionals seeking a move-in ready home that combines style, space, and modern convenience in a tranquil setting.

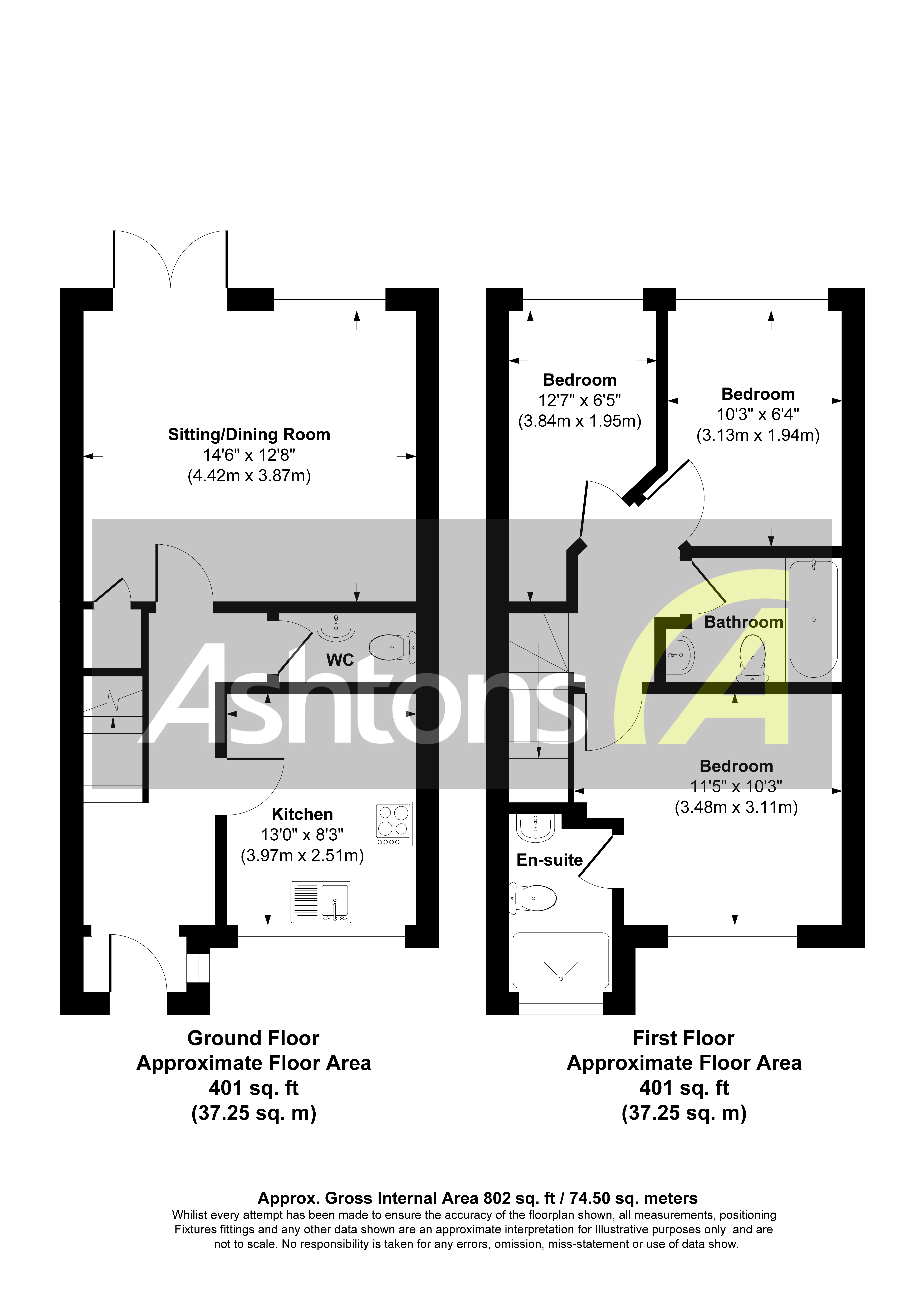
Wc

Bathroom

En-suite

Bedroom 3 10' 2" x 11' 5" (3.11m x 3.48m)

Bedroom 2 6' 4" x 10' 3" (1.94m x 3.13m)

Bedroom 1 6' 5" x 12' 7" (1.95m x 3.84m)

Kitchen 8' 3" x 13' 0" (2.51m x 3.97m)

Sitting/Dining Room 12' 8" x 14' 6" (3.87m x 4.42m)

Arrange a Viewing

Please contact our Branch Manager in Culcheth to arrange a viewing.

T: 01925 764744

E: culcheth@ashtons.net


Alternatively use the form below and we'll get back to you.

Floor Plan(s)

Siren Close, Warrington Floor Plan

Map View

Street View

Free Valuation

Our team of specialists will advise you on the real value of your property. Click here.

Hear about

new homes first.

We match buyers with their perfect home - typically 24 hours before they appear on the property portals. During these strange times, we feel it’s best to be able to view a home online before you view in person. Which is why hot buyers are notified first. If your not hot, don’t worry we can help you with that.

Who’s Hot? And Who’s Not?

Put simply, buyers who are ready to buy. So, if you have sold your home, cash buyer with nothing to sell or first time buyer with your finances in place your hot to trot!

Why Register With Us?

We sell 1 in every 4 homes across our effective area, so there is a good chance we will have your dream home coming on the market soon. Also, we typically alert our database of new homes up to 24 hours before they go online.

Sell Your Home or Get a Mortgage Straight Away!

It’s super important in a competitive market to get yourself in the best position possible. Whether that’s selling your current home or getting your finances in place. Luckily, we can help you with both.