• Buy
  • Rent
  • Commercial

Buy

Rent

Commerical

Land & New Homes

Auction

Mortgages

Home / Search Results / Houston Gardens, Warrington

Houston Gardens, Warrington

£159,950 OIRO

2 Bedrooms,

Details
Floor Plan
Video Tour
Location

Key Features

  • Off-road parking with allocated and visitor spaces
  • Mezzanine loft room overlooking the living space, ideal for a home office, snug, or additional living area
  • Bay-fronted lounge
  • Ground rent: £150 per year
  • Service charge: approx £150 per month

Details

Stylish top-floor apartment with mezzanine loft, open-plan living, two/three bedrooms (master en-suite), off-road parking, secure entry, and well-kept communal areas. Move-in ready.

Stylish First-Floor Apartment with Mezzanine Loft – Move-In Ready!

Ashtons Estate Agency proudly presents this immaculate top-floor apartment, a property that truly needs to be seen to be fully appreciated. Offering a stylish and spacious layout, it stands out with features rarely found in comparable homes in the area — including a stunning mezzanine loft room overlooking the living space, ideal as a home office, snug, or creative retreat.

Beautifully maintained by its current owners, the apartment showcases tasteful décor and exceptional attention to detail throughout, making it the perfect turn-key purchase.

Step inside to find:

  • A welcoming entrance hall with handy storage space

  • An open-plan living area featuring a charming bay-fronted lounge and separate dining zone

  • A fitted kitchen, ideal for cooking and entertaining

  • A sleek, well-appointed bathroom suite

  • Two/Three generously sized bedrooms, including a luxurious master bedroom with its own en-suite

  • A mezzanine loft room positioned above the living area, adding versatile extra space and character

Outside, the building offers:

  • Off-road parking, both allocated and visitor spaces

  • A secure intercom entry system

  • Well-maintained communal areas, professionally managed for added peace of mind

This is a home that perfectly combines comfort, style, and practicality. Whether you’re a first-time buyer, downsizer, or investor, this property ticks all the right boxes.

Ground Rent: £150 per year
Service Charge: £150 per month

For more information or to arrange a viewing, contact our Great Sankey branch today.

Arrange a Viewing

Please contact our Branch Manager in Great Sankey to arrange a viewing.

T: 01925 454300

E: mike@ashtons.net


Alternatively use the form below and we'll get back to you.

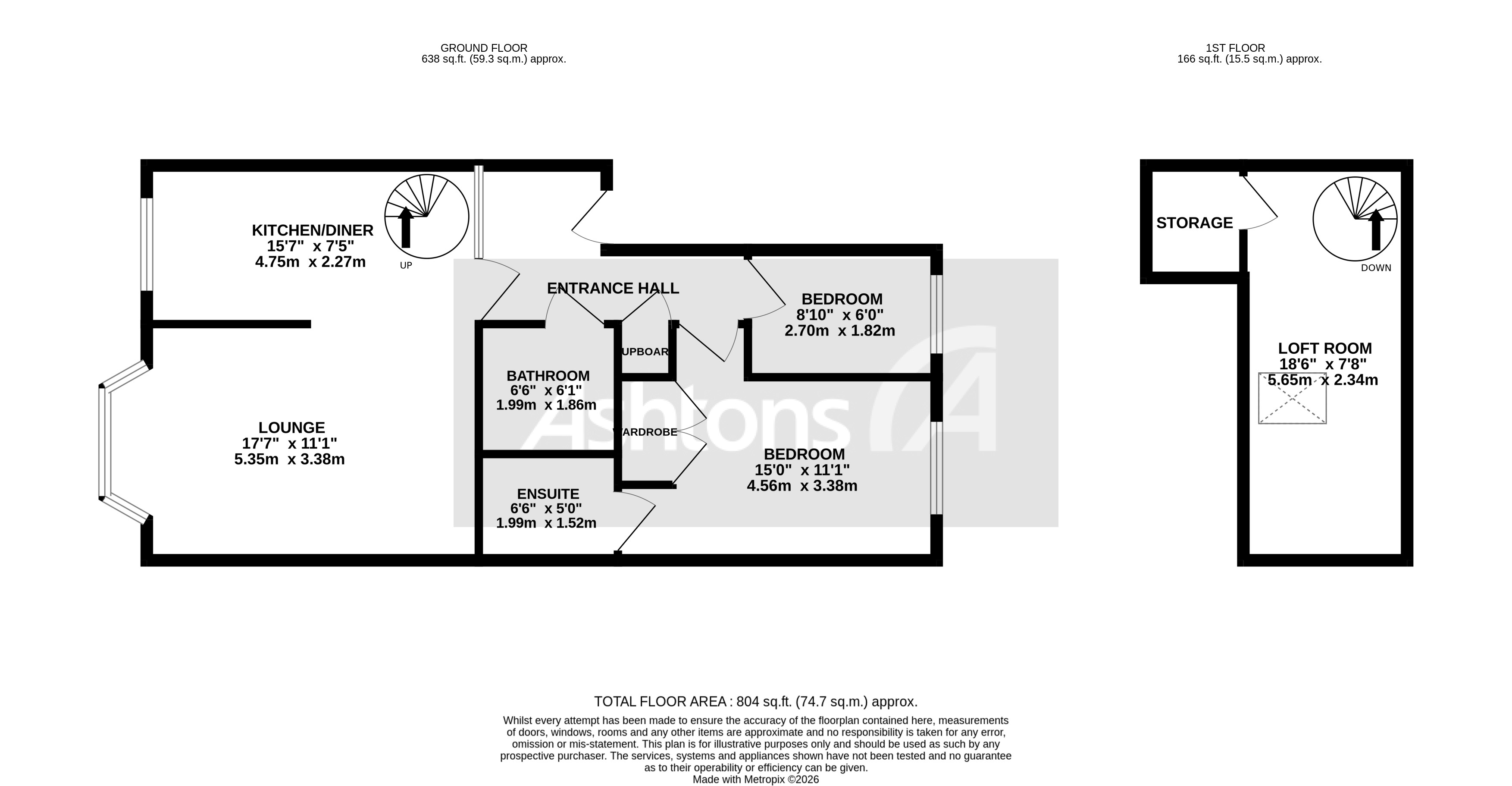
Floor Plan(s)

Houston Gardens, Warrington Floor Plan

Video Tour

Map View

Street View

Free Valuation

Our team of specialists will advise you on the real value of your property. Click here.

Hear about

new homes first.

We match buyers with their perfect home - typically 24 hours before they appear on the property portals. During these strange times, we feel it’s best to be able to view a home online before you view in person. Which is why hot buyers are notified first. If your not hot, don’t worry we can help you with that.

Who’s Hot? And Who’s Not?

Put simply, buyers who are ready to buy. So, if you have sold your home, cash buyer with nothing to sell or first time buyer with your finances in place your hot to trot!

Why Register With Us?

We sell 1 in every 4 homes across our effective area, so there is a good chance we will have your dream home coming on the market soon. Also, we typically alert our database of new homes up to 24 hours before they go online.

Sell Your Home or Get a Mortgage Straight Away!

It’s super important in a competitive market to get yourself in the best position possible. Whether that’s selling your current home or getting your finances in place. Luckily, we can help you with both.