• Buy
  • Rent
  • Commercial

Buy

Rent

Commerical

Land & New Homes

Auction

Mortgages

Home / Search Results / Lingwell Park, Widnes

Lingwell Park, Widnes

£825 pcm

2 Bedrooms,

Details
Floor Plan
Location

Key Features

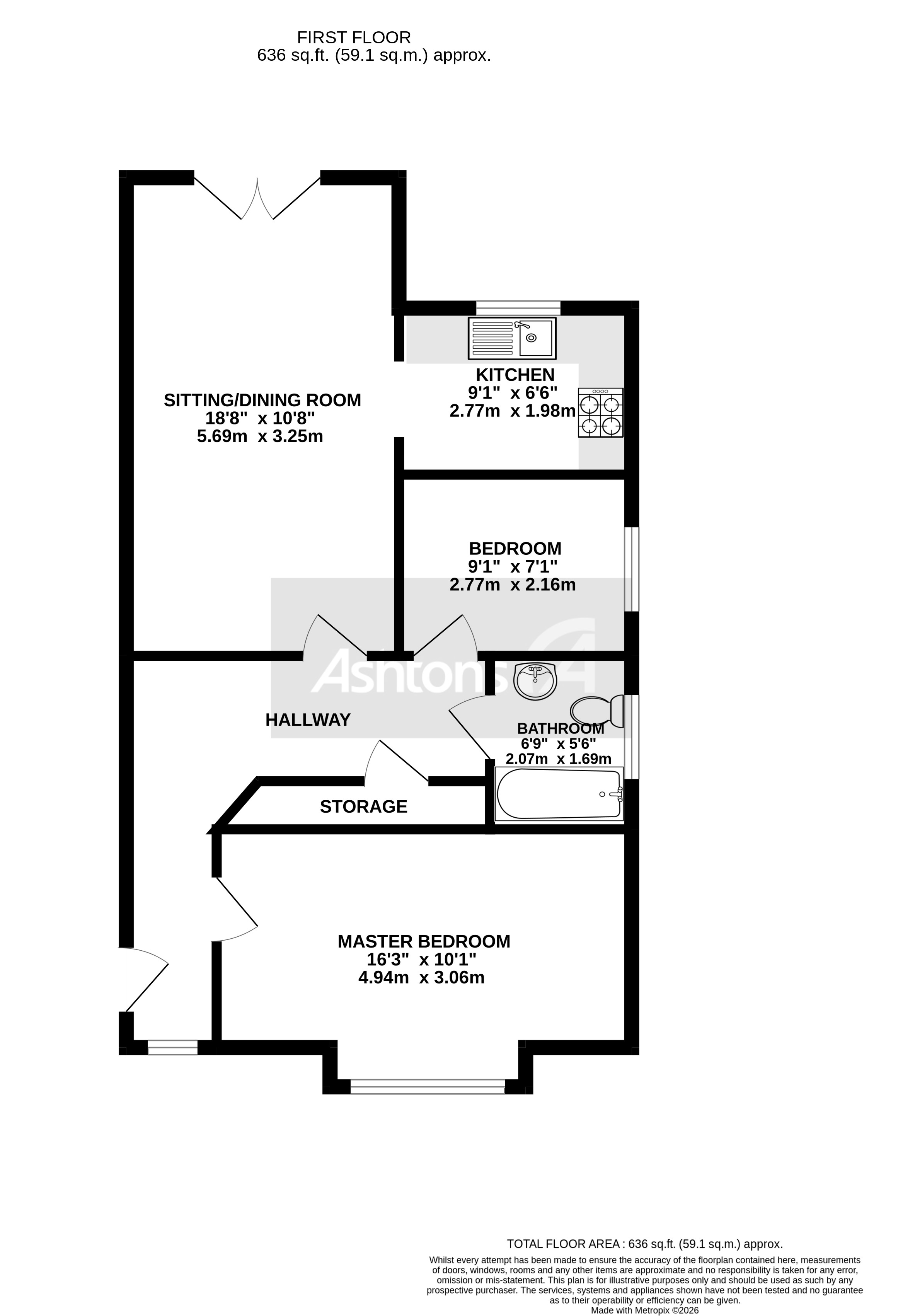
  • First Floor
  • Two Double Bedrooms
  • Large Living Room With Juliet Balcony
  • Allocated Parking
  • Close To Local Amenities
  • Available Soon

Details

We are delighted to present this exquisite 2 bedroom apartment located on the first floor of a well-maintained building.

We are delighted to present this exquisite 2 bedroom apartment located on the first floor of a well-maintained building. This immaculate property features two generous double bedrooms, perfect for relaxation and rest. The large living room is a focal point of the apartment, boasting a Juliet balcony that floods the space with natural light and offers a charming view and the apartment includes a modern kitchen, providing a sleek and functional space.

With convenient allocated parking available, residents can enjoy hassle-free parking on the premises. Situated in a prime location, this property is in close proximity to a variety of local amenities, offering convenience and accessibility to daily essentials.

This elegant apartment is available now, waiting to welcome its new occupants seeking comfort, style, and practicality. Don't miss the opportunity to make this refined property your new home. Contact us today for a viewing.

Arrange a Viewing

Please contact our Branch Manager in Warrington Lettings Department to arrange a viewing.

T: 01925 873533

E: megan@ashtons.net


Alternatively use the form below and we'll get back to you.

Floor Plan(s)

Lingwell Park, Widnes Floor Plan

Map View

Street View

Free Valuation

Our team of specialists will advise you on the real value of your property. Click here.

Hear about

new homes first.

We match buyers with their perfect home - typically 24 hours before they appear on the property portals. During these strange times, we feel it’s best to be able to view a home online before you view in person. Which is why hot buyers are notified first. If your not hot, don’t worry we can help you with that.

Who’s Hot? And Who’s Not?

Put simply, buyers who are ready to buy. So, if you have sold your home, cash buyer with nothing to sell or first time buyer with your finances in place your hot to trot!

Why Register With Us?

We sell 1 in every 4 homes across our effective area, so there is a good chance we will have your dream home coming on the market soon. Also, we typically alert our database of new homes up to 24 hours before they go online.

Sell Your Home or Get a Mortgage Straight Away!

It’s super important in a competitive market to get yourself in the best position possible. Whether that’s selling your current home or getting your finances in place. Luckily, we can help you with both.