• Buy
  • Rent
  • Commercial

Buy

Rent

Commerical

Land & New Homes

Auction

Mortgages

Home / Search Results / Severn Road, Warrington

Severn Road, Warrington

£1,250 pcm

2 Bedrooms, House

Details
Floor Plan
Location

Key Features

  • Detached Bungalow
  • Two Double Bedrooms
  • Garage & Driveway
  • Sought After Location
  • Available Now
  • Spacious Accomodation
  • Modern Kitchen

Details

Introducing this charming two bedroom detached bungalow, nestled in a sought-after location. Boasting two generously sized double bedrooms, this property offers ample living space for relaxation and entertainment. A modern kitchen adds a touch of sophistication to the space, making it ideal for culinary enthusiasts. Complete with a garage and driveway, convenience and security are at the forefront of this residence. With its spacious accommodation, this property provides the perfect canvas for personalisation and comfort. Available now for immediate occupancy, seize the opportunity to embrace a lifestyle of ease and refinement in this inviting abode.

Arrange a Viewing

Please contact our Branch Manager in Warrington Lettings Department to arrange a viewing.

T: 01925 873533

E: megan@ashtons.net


Alternatively use the form below and we'll get back to you.

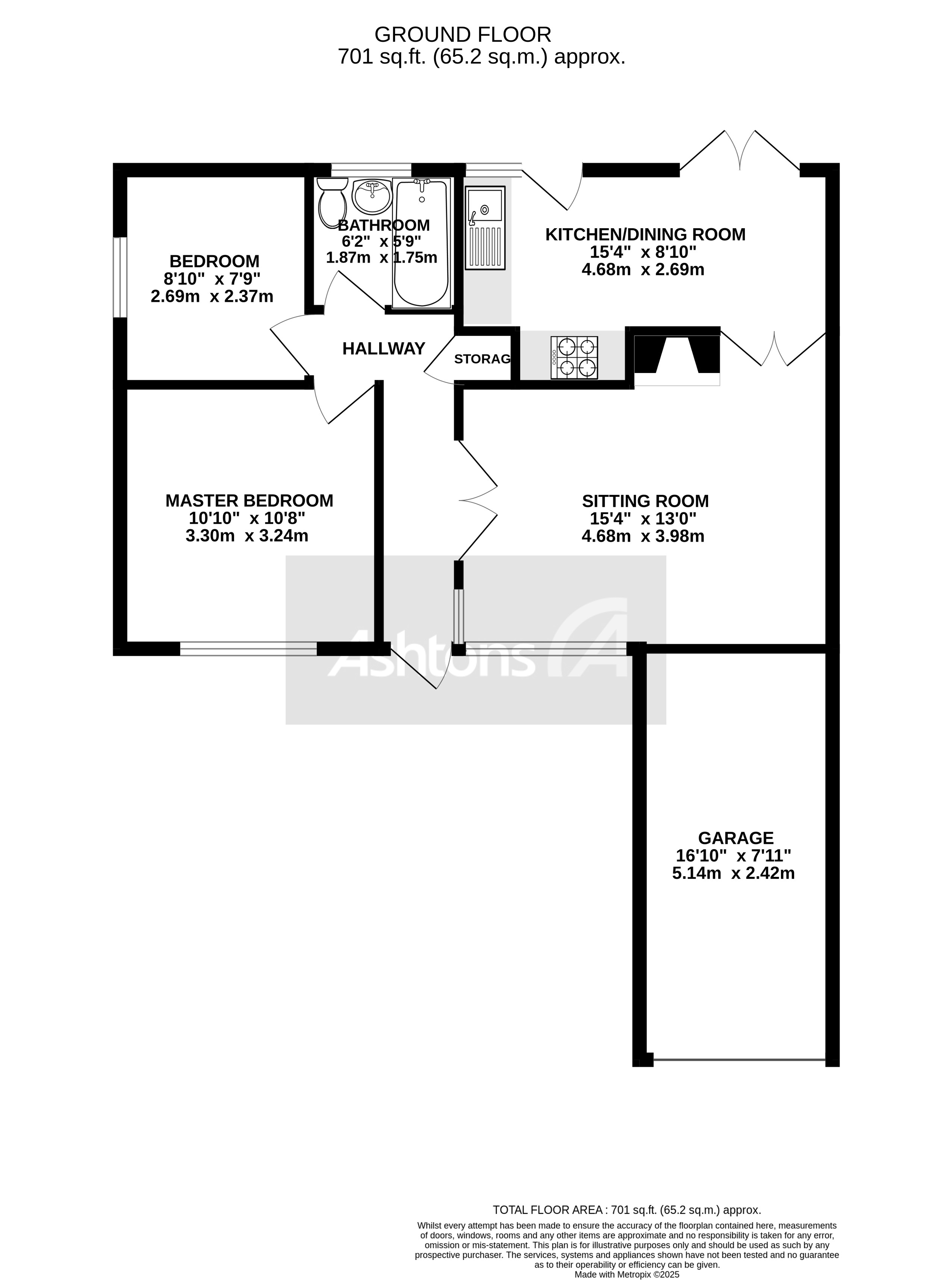
Floor Plan(s)

Severn Road, Warrington Floor Plan

Map View

Street View

Free Valuation

Our team of specialists will advise you on the real value of your property. Click here.

Hear about

new homes first.

We match buyers with their perfect home - typically 24 hours before they appear on the property portals. During these strange times, we feel it’s best to be able to view a home online before you view in person. Which is why hot buyers are notified first. If your not hot, don’t worry we can help you with that.

Who’s Hot? And Who’s Not?

Put simply, buyers who are ready to buy. So, if you have sold your home, cash buyer with nothing to sell or first time buyer with your finances in place your hot to trot!

Why Register With Us?

We sell 1 in every 4 homes across our effective area, so there is a good chance we will have your dream home coming on the market soon. Also, we typically alert our database of new homes up to 24 hours before they go online.

Sell Your Home or Get a Mortgage Straight Away!

It’s super important in a competitive market to get yourself in the best position possible. Whether that’s selling your current home or getting your finances in place. Luckily, we can help you with both.