• Buy
  • Rent
  • Commercial

Buy

Rent

Commerical

Land & New Homes

Auction

Mortgages

Home / Search Results / Wilderspool Causeway, Warrington

Wilderspool Causeway, Warrington

£275,000

4 Bedrooms, Terraced House

Details
Floor Plan
Video Tour
Location

Key Features

  • No Onward Chain
  • Perfect for HMO Investors
  • Four Bedrooms
  • Dining Room
  • Lounge
  • Three Shower Rooms

Details

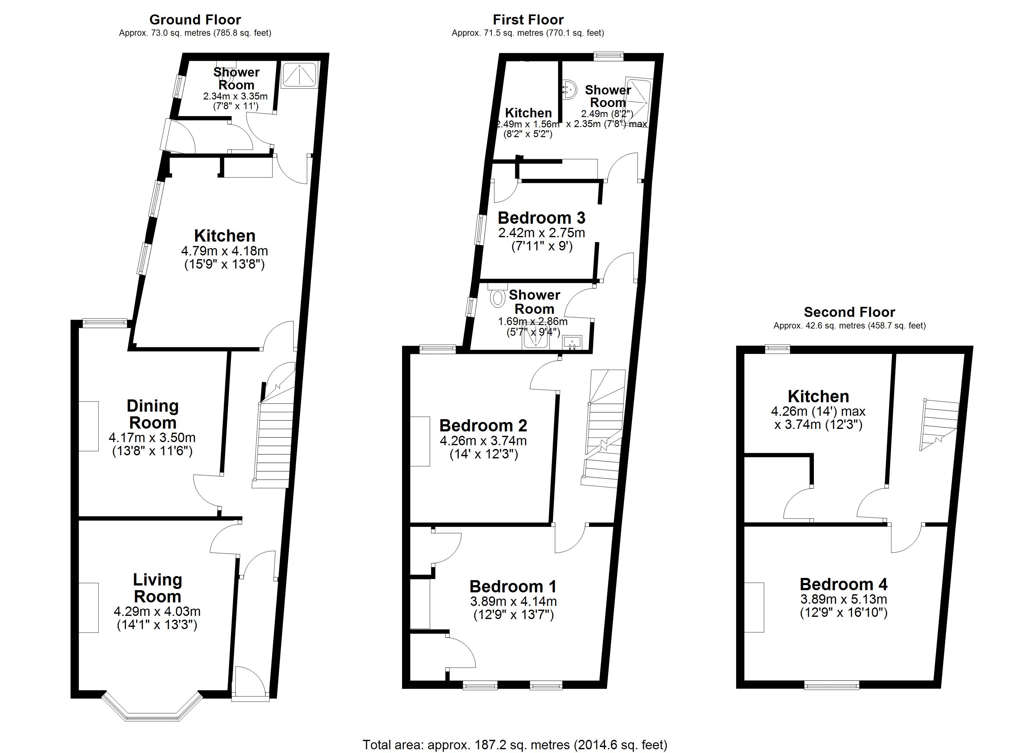
This substantial four-bedroom mid-terraced property presents an excellent opportunity for HMO investors seeking a high-yield addition to their portfolio. Thoughtfully arranged to maximise both privacy and communal living, the property offers generous and versatile accommodation ideally suited to multi-tenant occupancy.

SOLD OFF MARKET

This substantial four-bedroom mid-terraced property presents an excellent opportunity for HMO investors seeking a high-yield addition to their portfolio. Thoughtfully arranged to maximise both privacy and communal living, the property offers generous and versatile accommodation ideally suited to multi-tenant occupancy.

The interior comprises four well-proportioned bedrooms, each offering ample space for furnishings and comfortable day-to-day living. There are three shower rooms, providing convenience and practicality for multiple occupants. Uniquely, the property benefits from three separate kitchen areas, allowing flexibility in how the accommodation is configured and enhancing its appeal for shared living arrangements.

In addition to the private facilities, the home features a dedicated dining room and a spacious living room, creating welcoming communal areas where residents can socialise and relax. The layout lends itself well to HMO use, with a practical flow throughout and good separation between living and sleeping spaces.

Overall, this is a sizeable and adaptable mid-terraced property with strong income potential, well suited to investors looking to capitalise on the continued demand for shared accommodation.

Arrange a Viewing

Please contact our Branch Manager in Stockton Heath to arrange a viewing.

T: 01925 453400

E: cathy@ashtons.net


Alternatively use the form below and we'll get back to you.

Floor Plan(s)

Wilderspool Causeway, Warrington Floor Plan

Video Tour

Map View

Street View

Free Valuation

Our team of specialists will advise you on the real value of your property. Click here.

Hear about

new homes first.

We match buyers with their perfect home - typically 24 hours before they appear on the property portals. During these strange times, we feel it’s best to be able to view a home online before you view in person. Which is why hot buyers are notified first. If your not hot, don’t worry we can help you with that.

Who’s Hot? And Who’s Not?

Put simply, buyers who are ready to buy. So, if you have sold your home, cash buyer with nothing to sell or first time buyer with your finances in place your hot to trot!

Why Register With Us?

We sell 1 in every 4 homes across our effective area, so there is a good chance we will have your dream home coming on the market soon. Also, we typically alert our database of new homes up to 24 hours before they go online.

Sell Your Home or Get a Mortgage Straight Away!

It’s super important in a competitive market to get yourself in the best position possible. Whether that’s selling your current home or getting your finances in place. Luckily, we can help you with both.