• Buy
  • Rent
  • Commercial

Buy

Rent

Commerical

Land & New Homes

Auction

Mortgages

Home / Search Results / Bridgefield Road, Liverpool

Bridgefield Road, Liverpool

£395,000

4 Bedrooms, Detached House

Details
Floor Plan
Video Tour
Location

Key Features

Details

An Exceptional Four-Bedroom Detached Family Home in a Highly Sought-After Setting

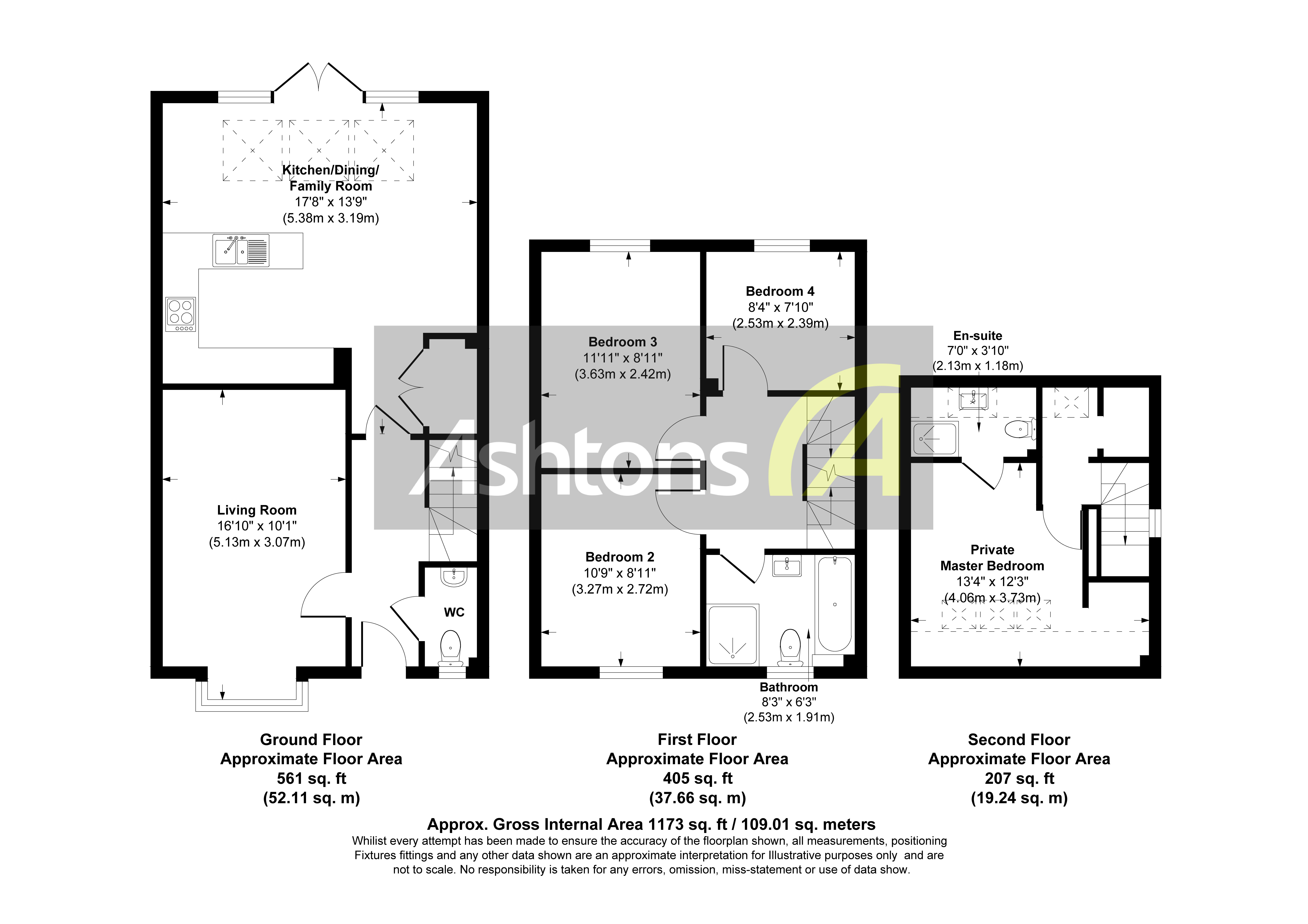
Set within a very popular and desirable location, this impressive four-bedroom detached family home enjoys an enviable position overlooking attractive green spaces and scenic surroundings. Designed for modern family living, the property offers spacious and versatile accommodation arranged over three thoughtfully planned floors.

Upon entering, a welcoming entrance hall sets the tone for the rest of the home. The lounge is enhanced by a charming bay window that frames peaceful green views and fills the room with natural light, creating a perfect space to relax and unwind.

To the rear of the property lies the heart of the home: a superb open-plan kitchen and family living space. The bespoke fitted kitchen is finished to a high standard, featuring stylish cabinetry, quality work surfaces, and a range of integrated appliances. This contemporary space flows seamlessly into the family area, where patio doors open directly onto the garden, making it ideal for both everyday living and entertaining. A convenient ground floor WC completes this level.

The first floor offers three well-proportioned bedrooms, all thoughtfully designed to suit family needs, along with a modern family bathroom.

Occupying the entire second floor is a stunning master suite, providing a private and luxurious retreat. This impressive space benefits from built-in wardrobes, a sleek en-suite shower room, and Velux windows that overlook the surrounding greenery, offering breathtaking views, beautiful scenery, and spectacular sunsets.

Externally, the property continues to impress with off-road parking and a detached garage, providing both convenience and practicality.

Additionally the property is equipped with solar panels, offering energy efficiency and sustainability for environmentally conscious living

This exceptional home perfectly combines modern living, generous space, and a picturesque setting, making it an ideal choice for families seeking both comfort and lifestyle in a highly regarded location.

Arrange a Viewing

Please contact our Branch Manager in Widnes to arrange a viewing.

T: 01513052525

E: widnes@ashtons.net


Alternatively use the form below and we'll get back to you.

Floor Plan(s)

Bridgefield Road, Liverpool Floor Plan

Video Tour

Map View

Street View

Free Valuation

Our team of specialists will advise you on the real value of your property. Click here.

Hear about

new homes first.

We match buyers with their perfect home - typically 24 hours before they appear on the property portals. During these strange times, we feel it’s best to be able to view a home online before you view in person. Which is why hot buyers are notified first. If your not hot, don’t worry we can help you with that.

Who’s Hot? And Who’s Not?

Put simply, buyers who are ready to buy. So, if you have sold your home, cash buyer with nothing to sell or first time buyer with your finances in place your hot to trot!

Why Register With Us?

We sell 1 in every 4 homes across our effective area, so there is a good chance we will have your dream home coming on the market soon. Also, we typically alert our database of new homes up to 24 hours before they go online.

Sell Your Home or Get a Mortgage Straight Away!

It’s super important in a competitive market to get yourself in the best position possible. Whether that’s selling your current home or getting your finances in place. Luckily, we can help you with both.