• Buy
  • Rent
  • Commercial

Buy

Rent

Commerical

Land & New Homes

Auction

Mortgages

Home / Search Results / Chester Road, Warrington

Chester Road, Warrington

£325,000

2 Bedrooms, Terraced House

Details
Floor Plan
Video Tour
Location

Key Features

  • Beautifully Modernised Cottage
  • Two Spacious Bedrooms
  • Two Reception Rooms
  • Newly Renovated Bathroom
  • Fantastic Size Rear Garden
  • Located In A Highly Sought After Area

Details

A beautifully presented mid-terraced cottage, located in the highly sought after area of Grappenhall, offered for sale with a freehold title. Boasting two spacious bedrooms, a newly fitted bathroom, and a larger than average garden, this charming home is filled with character and warmth, making it the perfect choice for families and first time buyers alike.

Upon entering the property through the vestibule, you are welcomed into a beautifully presented living room that immediately showcases the home’s charm. The focal point of the room is the exposed brick chimney breast, complete with a wood burning stove that creates a warm and inviting atmosphere. A large window allows natural light to flood the space, while built-in cabinetry provides both practicality and elegance. From here, the accommodation flows naturally into the dining room, which is equally impressive with its original feature fireplace, further fitted storage, and a window offering a glimpse through to the kitchen. The kitchen is a bright and thoughtfully designed space that combines modern upgrades with characterful features. Recent improvements to the cabinetry and tiling add a contemporary touch, while an exposed brick wall enhances the overall charm. The kitchen is well equipped with an integrated fridge freezer and dishwasher, and French doors open directly onto the garden, creating a seamless connection between indoor and outdoor living. A recently renovated bathroom is also located on the ground floor and has been finished to an exceptional standard. It features a walk-in shower, attractive tiling, and a vanity sink, all combining to create a stylish and practical space.

Ascending to the first floor, the sense of character continues with two spacious bedrooms. The first bedroom is particularly appealing, with a cast iron fireplace that serves as a charming focal point, while the second bedroom benefits from built-in cupboard space and views over the rear garden. Both rooms are well proportioned and presented to a high standard, reflecting the quality of renovation found throughout the home. The property further benefits from a loft that has been fully boarded, providing a generous amount of storage space. Throughout the house, the flooring has been replaced, and the renovations have been carried out with great attention to detail, ensuring a home that is not only full of character but also finished to a modern standard. The result is a property that combines period charm with contemporary comfort, making it an exceptional home ready to move straight into.

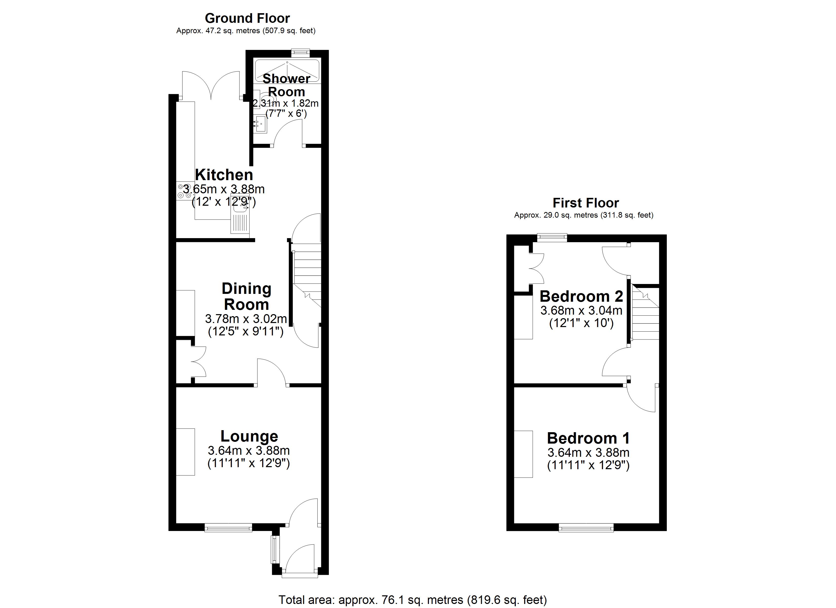
Living Room 11' 11" x 12' 9" (3.64m x 3.88m)

Dining Room 12' 5" x 9' 11" (3.78m x 3.02m)

Kitchen 12' 0" x 12' 9" (3.65m x 3.88m)

Bathroom 7' 7" x 6' 0" (2.31m x 1.82m)

Bedroom One 11' 11" x 12' 9" (3.64m x 3.88m)

Bedroom Two 12' 1" x 10' 0" (3.68m x 3.04m)

Arrange a Viewing

Please contact our Branch Manager in Stockton Heath to arrange a viewing.

T: 01925 453400

E: cathy@ashtons.net


Alternatively use the form below and we'll get back to you.

Floor Plan(s)

Chester Road, Warrington Floor Plan

Video Tour

Map View

Street View

Free Valuation

Our team of specialists will advise you on the real value of your property. Click here.

Hear about

new homes first.

We match buyers with their perfect home - typically 24 hours before they appear on the property portals. During these strange times, we feel it’s best to be able to view a home online before you view in person. Which is why hot buyers are notified first. If your not hot, don’t worry we can help you with that.

Who’s Hot? And Who’s Not?

Put simply, buyers who are ready to buy. So, if you have sold your home, cash buyer with nothing to sell or first time buyer with your finances in place your hot to trot!

Why Register With Us?

We sell 1 in every 4 homes across our effective area, so there is a good chance we will have your dream home coming on the market soon. Also, we typically alert our database of new homes up to 24 hours before they go online.

Sell Your Home or Get a Mortgage Straight Away!

It’s super important in a competitive market to get yourself in the best position possible. Whether that’s selling your current home or getting your finances in place. Luckily, we can help you with both.