• Buy
  • Rent
  • Commercial

Buy

Rent

Commerical

Land & New Homes

Auction

Mortgages

Home / Search Results / Michigan Place, Warrington

Michigan Place, Warrington

£995 pcm

2 Bedrooms,

Details
Floor Plan
Location

Key Features

  • Two bedroom coach house
  • Cul de sac position
  • Garage
  • Driveway
  • Sought after location

Details

This charming rare two-bedroom detached coach house is being offered to let.

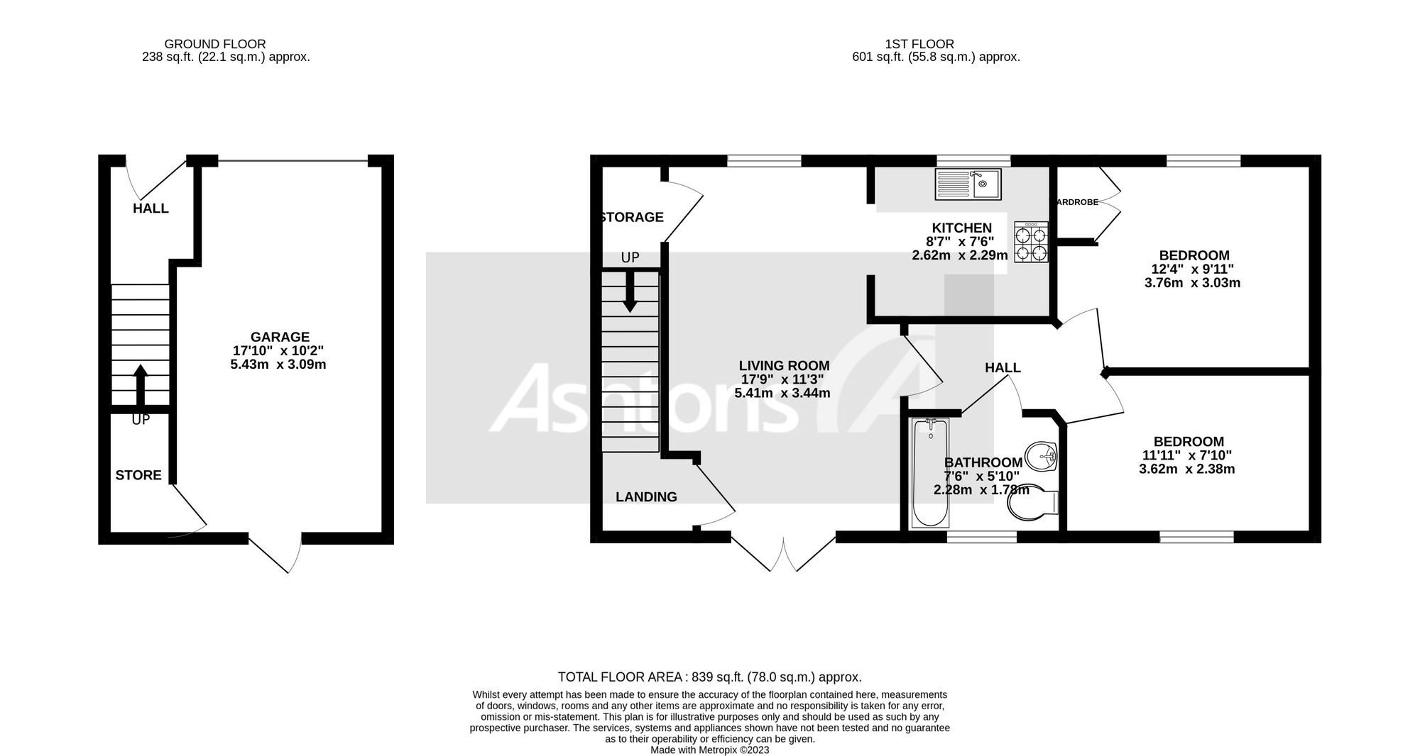
This charming rare two-bedroom detached coach house is being offered to let. Occupying a sought-after cul de sac position, this spacious & unique coach house offers an excellent home. Smartly presented throughout, the property benefits from parking, an integral garage, and its own front and rear doors. With ample storage facilities throughout the property comprises an integral garage with storage under the stairs, a ground floor entrance, landing, open plan lounge/diner, and kitchen along with dual aspect windows, good size bedrooms, and a bathroom. Gas central heating & double glazing. Viewing is highly recommended with access to a broad range of amenities, specifically Sainsbury’s supermarket, Chapelford Village Primary School, the Chapelford Farm family pub, and Warrington West Station, which are all within walking distance.

Arrange a Viewing

Please contact our Branch Manager in Warrington Lettings Department to arrange a viewing.

T: 01925 873533

E: megan@ashtons.net


Alternatively use the form below and we'll get back to you.

Floor Plan(s)

Michigan Place, Warrington Floor Plan

Map View

Street View

Free Valuation

Our team of specialists will advise you on the real value of your property. Click here.

Hear about

new homes first.

We match buyers with their perfect home - typically 24 hours before they appear on the property portals. During these strange times, we feel it’s best to be able to view a home online before you view in person. Which is why hot buyers are notified first. If your not hot, don’t worry we can help you with that.

Who’s Hot? And Who’s Not?

Put simply, buyers who are ready to buy. So, if you have sold your home, cash buyer with nothing to sell or first time buyer with your finances in place your hot to trot!

Why Register With Us?

We sell 1 in every 4 homes across our effective area, so there is a good chance we will have your dream home coming on the market soon. Also, we typically alert our database of new homes up to 24 hours before they go online.

Sell Your Home or Get a Mortgage Straight Away!

It’s super important in a competitive market to get yourself in the best position possible. Whether that’s selling your current home or getting your finances in place. Luckily, we can help you with both.